2005年造价工程师《工程造价案例分析》真题及答案(3)
来源:育路教育网发布时间:2012-05-11
试题六(20分)
本试题分三个专业(Ⅰ。土建工程、Ⅱ。管道安装工程、Ⅲ。电气安装工程),请任选其中一题作答。若选做多题,按所答的第一题(卷面顺序)计分。
1.土建工程
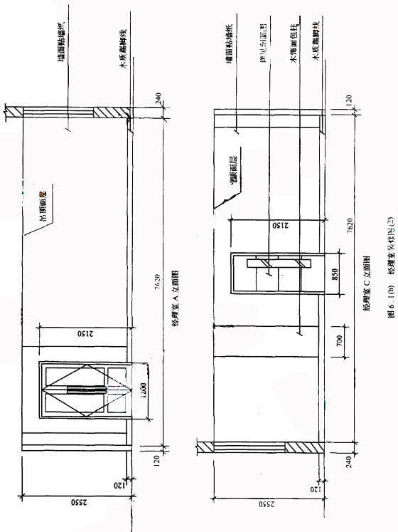
某经理室装修工程如图6.I所示。间壁轻隔墙厚120mm,承重墙厚240mm.经理室内装修做法详见答题纸表6.I.1“项目名称” 中所列的内容。踢脚、墙面门口侧边的工程量不计算,柱面与墙踢脚做法相同,柱装饰面层厚度50mmm.消耗量定额是按《建设工程工程量清单 计价规范》的计算规则编制的。
问题
1.根据图6.工所示内容和答题纸表6.I.1“分部分项工程量清单”所列项目,依据《建设工程工程量清单计价规范》附录B 的计算规则,计算经理室内装修工程量。范围包括:A、C两个立面、柱面(Z1、Z2、Z3)、地面、踢脚线、天棚。将相应的计量单位、计算式 及计算结果填入答题纸表6.I.1“分部分项工程量清单”的相应栏目中。
2.根据答题纸表6.I.1所列经理室内装修做法,以及《××装饰工程消耗量定额》
(节选)的消耗量、预算价格,按《建设工程工程量清单计价规范》中综合单价的内容要求,编制答题纸表6.I.2“分部分 项工程量清单综合单价分析表”。管理费按人工费的70%、利润按人工费的50%计算。
(计算结果均保留两位小数)
《××装饰工程消耗量定额》(节选)
工作内容:
1.块料楼地面:清理基层、找平层、面层、灌缝擦缝、清理净面等过程。
2.木质踢脚线:清理基层、安装基层、面层、钉木线、打磨净面、油漆等过程。
3.柱(梁)饰面:木龙骨制安、粘钉基层、刷防火漆、钉面层等过程。
4.天棚吊顶:吊件加工安装、轻钢龙骨安装、整体调整等过程。
计量单位:m2
工作内容:
1.石膏板天棚:安装面层等过程。
2.木材面清漆:磨砂纸、润油粉、刮腻子、油色、清漆四遍、磨退出亮等过程。
3.乳胶漆:填补裂缝、满刮腻子两遍、磨砂纸、刷乳胶漆等过程。
4.墙纸裱糊:刮腻子、打磨、刷胶、裱糊等过程。
问题2
表6.Ⅰ.2 分部分项工程量清单综合单价分析表(15分)
| 序号 | 项目编码 | 项目名称 | 工作内容 | 综合单价组成 | 综合单价 | ||||
| 人工费 | 材料费 | 机械费 | 管理费 | 利润 | |||||
| 1 | 020102002001 | 块料楼地面 | 略 | 10.57 | 129.11 | 0.40 | 7.40 | 5.30 | 152.78 |
| 2 | 020105006001 | 木质踢脚线 | 略 | 13.65 | 81.11 | 1.77 | 9.56 | 6.83 | 112.92 |
| 3 | 020208001001 | 柱面装饰 | 略 | 37.45 | 69.28 | 0.04 | 26.22 | 18.73 | 151.72 |
| 4 | 020302001001 | 天棚吊顶 | 略 | 12.60 | 52.25 | 0 | 8.82 | 6.30 | 79.97 |
| 5 | 02050900100l | 墙纸裱糊 | 略 | 6.30 | 19.33 | 0 | 4.41 | 3.15 | 33.19 |
该工程分部分项工程量清单项目的统一编码见表6.Ⅱ.1:








