2006年造价工程师《工程造价案例分析》真题及答案(7)
来源:育路教育网发布时间:2012-05-11
Ⅱ。管道安装工程
1.某总承包施工企业根据某安装工程的招标文件和施工方案决定按以下数据及要求进行投标报价:
该安装工程按设计文件计算出各分部分项工程工料机费用合计为6000万元,其中人工费占10%。
安装工程脚手架搭拆的工料机费用,按各分部分项工程人工费合计的8%计取,其中人工费占25%;安全防护、文明施工措施费用,按当地工程造价管理机构发布的规定计100万元,根据建设部建办[2005]89号《建筑工程安全防护、文明施工措施费用及使用管理规定》中“投标方安全防护、文明施工措施的报价,不得低于根据工程所在地工程造价管理机构测定费率计算所需费用总额的90%”的规定,业主要求按90%计;其他措施项目清单费用按l50万元计。
施工管理费、利润分别按人工费的60%、40%计。
按业主要求,总承包企业将占工程总量20%的部分专业工程发包给某专业承包企业,总承包服务费按分包专业工程各分部分项工程人工费合计的l5%计取。
规费按8万元计;税金按税率3.50%计。
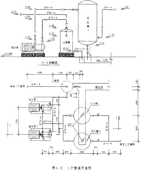
2.其中某生产装置中部分工艺管道系统如图6.Ⅱ所示。
管道系统各分部分项工程量清单项目的统一编码见下表:
| 项目编码 | 项目名称 | 项目编码 | 项目名称 |
| 030602002 | 中压碳钢管道 | 030615001 | 管架制作安装 |
| 030605001 | 中压碳钢管件 | 030616003 | 焊缝X光射线探伤 |
| 030608002 | 中压法兰阀门 | 030616005 | 焊缝超声波探伤 |
| 0306l1003 | 中压碳钢对焊法兰 |
问题
1.按照《建设工程工程量清单计价规范》和建标[2003]206号文《建筑安装工程费用项目组成》的规定,计算出总承包企业对该单项工程的(含分包专业工程)投标报价。将各项费用的计算结果填入答题纸表6.Ⅱ。1“单项工程费用汇总表”中,其计算过程写在表6.Ⅱ。1“单项工程费用汇总表”的下面。(计算结果均保留整数)
2.根据《建设工程工程量清单计价规范》的规定,计算管道φ89×4、管道φ76×4、管道φ57×3.5、管架制作安装、焊缝x光射线探伤、焊缝超声波探伤等六项工程量,并写出计算过程(计算结果均保留一位小数)。编列出该管道系统(注:阀门、法兰安装除外)的分部分项工程量清单项目,将结果填入答题纸表6.Ⅱ。2“分部分项工程量清单表”。
![221802555[1].jpg](http://www.yuloo.com/d/file/1205/196a40daecd10e75d5f97f1c0e0c8acf.jpg)
说明:
1.本图所示为某工厂生产装置的部分工艺管道系统,该管道系统工作压力为2.0MPa.图中标注尺寸标高以m计,其他均以mm计。
2.管道均采用20#碳钢无缝钢管,弯头采用成品压制弯头,三通为现场挖眼连接,管道系统的焊接均为氩电联焊。
3.所有法兰为碳钢对焊法兰;阀门型号:止回阀为H41H一25,截止阀为J41H一25,采用对焊法兰连接。
4.管道支架为普通支架,共耗用钢材42.4kg,其中施工损耗为6%。
5.管道系统安装就位后,对φ76×4的管线的焊口进行无损探伤。其中法兰处焊口采用超声波探伤;管道焊缝采用x光射线探伤,片子规格为80mm×l50mm,焊口按36个计。
6.管道安装完毕后,均进行水压试验和空气吹扫。管道、管道支架除锈后,均进行刷防锈漆、调和漆各两遍。


