2006年造价工程师《工程造价案例分析》真题及答案(6)
来源:育路教育网发布时间:2012-05-11
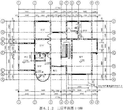
注:弧形落地窗半径只=1500mm(为B轴外墙外边线到弧形窗边线的距离,弧形窗的厚度忽略不计)
2.依据《建设工程工程量清单计价规范》计算卧室(不含卫生问)楼面、地面工程量,计算坡屋面工程量。将计算过程及结果填入答题纸表6.I.2“分部分项工程量计算表”。
3.依据《建设工程工程量清单计价规范》编制卧室楼面、地面,坡屋面工程的分部分项工程量清单,填入答题纸表6.I.3“分部分项工程量清单表”(水泥砂浆楼地面的项目编码为020101001,瓦屋面的项目编码为010701001)。
4.依据《建设工程工程量清单计价规范》编制“单位工程费汇总表”。假设别墅部分项目的分部分项工程量清单计价合计207 822元,其中人工费41 560元;措施项目清单计价合计48 492元;其他项目清单计价合计l2 123元;规费以人工费为基数计取,费率为30%;税率为3.413%。将有关数据和相关内容填入答题纸表6.I.4“单位工程费汇总表”。
(计算结果均保留两位小数。)






